Borrar
De piso oscuro a luminoso hogar de una interiorista bilbaína y su hija en el Casco Viejo.

Ver fotos

De piso oscuro a luminoso hogar de una interiorista bilbaína y su hija en el Casco Viejo. Biderbost Photo
Pisos en Bilbao (Casco Viejo)

De piso oscuro a luminoso hogar de una interiorista bilbaína y su hija en el Casco Viejo

Andrea García ha conseguido crear una vivienda minimalista que mira a la luz en Carnicería Vieja. «Para poder llevar esa claridad a toda la casa, lo primordial era crear espacios diáfanos», explica

Lunes, 14 de noviembre 2022

Comenta

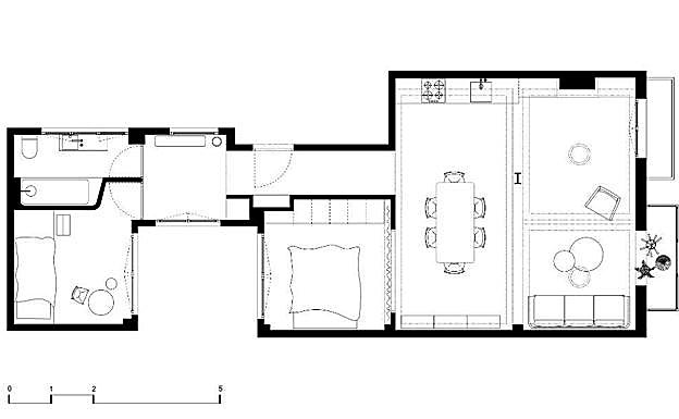
Este piso de la calle Carnicería Vieja, en el Casco Viejo bilbaíno, aglutina los principios que definen a BABELstudio, un joven estudio de arquitectura que apuesta por un estilo respetuoso, calmado y tranquilo. Así nos lo explica Andrea García cuando nos recibe en las oficinas que comparte en la calle Marzana con sus socios Andrea Emmanuel y Michael Shmidt. Hablamos con ella precisamente porque, además de ser la artífice principal de esta reforma, vive junto a su hija en este piso junto a la Catedral de Santiago.

En el salón, sillón BFK de Knoll, mesita auxiliar Cep de Teulat, sofá de Joquer BCN y lámpara colgante Oh! de Linea light. Biderbost Photo

Si bien el hecho de diseñar su propia casa ya entrañaba un gran reto en sí mismo, su mayor desafío era ganar espacio y trasladar la luz que entraba por la fachada principal a toda la casa. «El proyecto lo llevé a cabo en la pandemia, ya que encerrada en casa es cuando me di cuenta, más todavía, de estas necesidades. Aunque tiene ventanas muy grandes, es un segundo piso en el Casco Viejo, dónde las casas están muy próximas entre sí y no hay mucha entrada de luz. Para poder llevar esa claridad a toda la casa, lo primordial era crear espacios diáfanos. Así que diseñe toda la casa mirando a la luz y abandonando el espacio compartimentado que tenía el piso», añade Andrea.

El diseño de la vivienda quiere poner en valor el respeto hacia las piezas artesanales que se encontraban originalmente en el inmueble. De esta manera se recuperan e integran la chimenea de mármol, las decoraciones florales de los techos y los elementos de carpintería de madera tanto interiores como exteriores. Biderbost Photo

Todas las zonas de la casa se encuentran conectadas. En el espacio diáfano principal, se ubican la cocina, el salón y el comedor-oficina que tras unas cortinas alberga el dormitorio de Andrea, que conecta a su vez por la ventana con la habitación de su hija. «Es muy bonito levantarnos y saludarnos por la ventana. La amplitud que hemos generado con todo diáfano es brutal. La casa parece muchísimo más grande, ya que cuenta con 68 metros cuadrados y da la sensación de tener muchos más», nos asegura Andrea. Para la arquitecta, todos son ventajas a la hora de compartir espacios, porque la habitación es un añadido más al salón y, además, los dos dormitorios «dan al pequeño patio interior, por lo que el problema del ruido, muy típico en el Casco por la noche, queda solucionado», concluye.

En el comedor, que hace en ocasiones la función de oficina, estantería Tria de Mobles 114, sillas Hari de Ondarreta y mesa Sui de Inclass. Biderbost Photo

Algo que todos nos preguntamos cuando vemos que tan solo unas cortinas separan el salón del dormitorio es sobre la intimidad. Pero Andrea lo tiene muy claro, «quién tiene niños pequeños sabe que esa privacidad no la tienes tampoco ni con paredes ni con puertas», ríe desde su estudio.

En el dormitorio, separado del salón por una cortina y lámpara Cesta de Santa&Cole, apliques Mini ball de Flos. Biderbost Photo

Como en todos de sus proyectos, BABELstudio intenta crear visuales perspectivas, mantener una esencia natural y recuperar los elementos que se pueden recuperar y que tienen potencial. En este caso, se ha mantenido la chimenea de mármol que es una prolongación de la cocina, las decoraciones florales de los techos y los elementos de carpintería de madera tanto interiores como exteriores. Otro de los detalles recuperados es el pilar del salón, en el que tras quitar el revestimiento que tenía se pueden leer las siglas de Altos Hornos de Bizkaia.

En la cocina, los armarios tan solo ocupan el tren inferior de la pared. En ella, linestras y apliques de Zangra y grifo de John Pawson. Biderbost Photo

Los nuevos elementos y materiales que se han introducido en el proyecto mantienen la esencia del oficio, ya que se tratan siempre de piezas naturales y hechas a mano. La tarima maciza de roble, la baldosa hidráulica, la piedra de encimera y lavabo y los revestimientos de microcemento abogan por la vuelta a la producción manual de la arquitectura.

Biderbost Photo

En cuanto a la decoración, los elementos son sencillos, sobrios y no quitan ni un ápice el protagonismo a las líneas puras que imperan en el espacio. La estantería del comedor es de Tria de Mobles 114, la mesa de Inclass Sui y las sillas Hari de Ondarreta, el sillón de BKF Knoll y la mesita auxiliar de Cep Teulat. Andrea tiene un especial cariño a un jarrón que se desmonta y se convierte en varias tazas de la casa guipuzcoana Miandku.

Ahora mismo están inmersos en el proyecto del segundo local que abrirá la conocida pizzería Demaio, cerca de Jardines de Albia, tras ser los artífices del establecimiento que tiene en la calle San Francisco y su posterior ampliación con la conversión de la centenaria Calzados Layana en un obrador. A esta obra se suman una casa en María Muñoz, otra espectacular en Elantxobe… Y no solo realizan viviendas, acaban de ganar un concurso público para el Centro de Orientación y Emprendimiento de Lanbide.

Publicidad

Publicidad

Publicidad

Publicidad

Esta funcionalidad es exclusiva para suscriptores.

Reporta un error en esta noticia

* Campos obligatorios

elcorreo De piso oscuro a luminoso hogar de una interiorista bilbaína y su hija en el Casco Viejo